QUALITY.
WITHOUT COMPROMISE.
Drafting / Design Services
With over a decade of experience in the industry, Chris began his professional journey as a Revit modeler for a local builder, gaining invaluable insights into the intricacies of design and construction. This extensive background empowers us to deliver exceptional quality and innovation in every project we undertake, ensuring that our clients' visions come to life with precision and creativity.


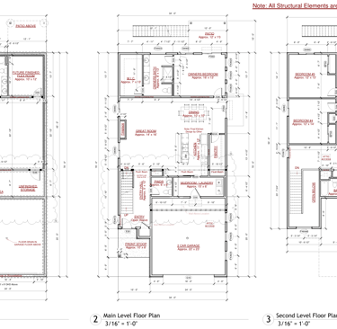
Our company has expanded from the solid foundation of construction blueprints, which have remained our primary focus for the past several years. We take pride in offering a wide range of services, from complete custom designs tailored to individual needs to spec homes developed for local builders, catering to various requirements in between.






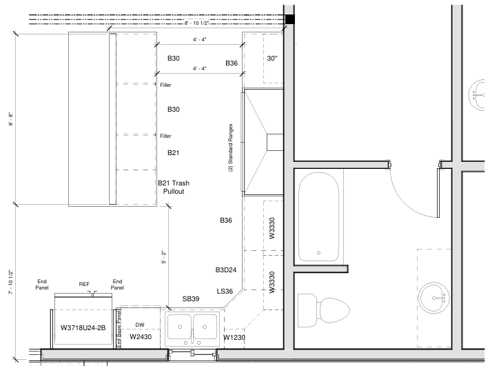
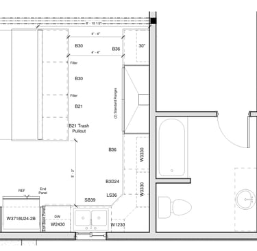
Are you considering a DIY project, perhaps a kitchen remodel? We can help you turn your vision into reality by providing detailed plans tailored to your needs. Our comprehensive plans include all the essential information you require to navigate the process effortlessly. With our expertly crafted plans in hand, you can walk confidently into a cabinet distributor and place your order with ease. Whether you're updating your cabinets, countertops, or overall kitchen layout, we make DIY simpler than ever. Transform your kitchen space and bring your ideas to life with our personalized project plans, designed to streamline your remodeling journey. Let’s make your dream kitchen a reality!


Construction SERVICES
Custom Home Building
Renovation and Additions
Light Commercial Remodel
Outdoor Spaces
Garage / Pole Barn Buildings
Consulting / Project Management Services
Are you a property owner looking to manage your own construction or remodeling project but feeling overwhelmed by the process? Our project management and consulting services are here to help. Whether you're unsure about scheduling, ordering materials, or need guidance on specific tasks, we provide the expertise you need to navigate your project successfully. If you already have a builder but want an independent firm to inspect their work or ensure your requests are being met, we can assist with that as well. Our goal is to empower you throughout your project, ensuring it is completed to your satisfaction, on time, and within budget. Let us help turn your vision into reality.


