Our recent projects
Drafting / Design Services
We take pride in offering a wide range of services from complete custom designs to spec homes developed for local builders, catering to various requirements in between.




New Residence
We love it when all the pictures on the plan become a reality!
This property had many lives in this community throughout the years from a gas station, a general store, residence and then unfortunately an overgrown dumping ground. It had been several years of back- breaking work for this family, but new life was brought to this small community through the building of this new home, and we are grateful to have been a part of this project and change!




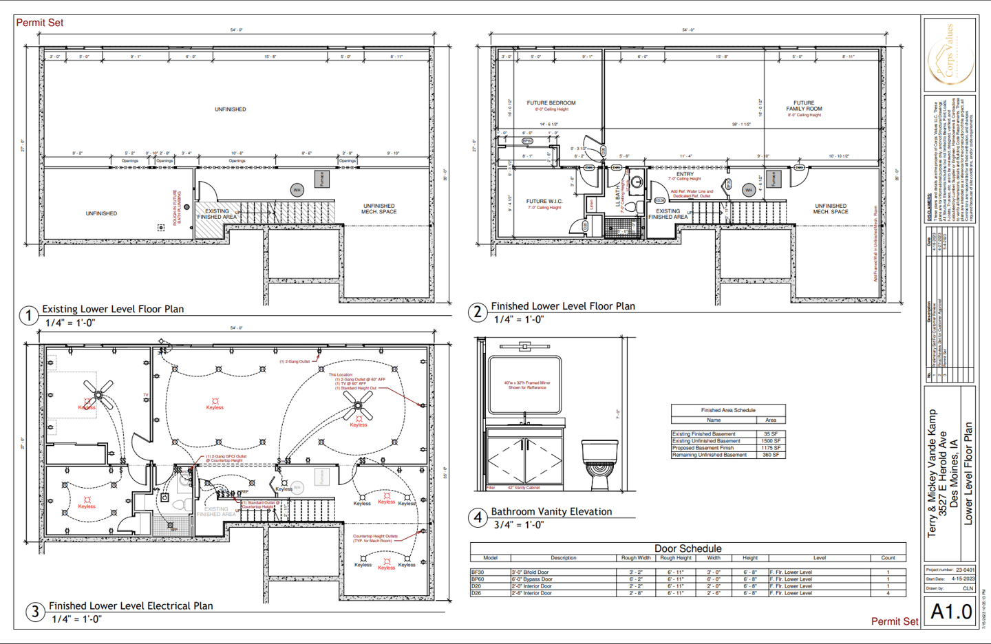
Basement Finish
We added over 1,150 finished sqft. to this home. We took this unfinished basement that was only being used for storage and created a space that will be used and enjoyed for years. This project added 2 bedrooms, 1 bath and a large family area. The homeowners look forward to using this space for family game/movie nights and love having the extra bedrooms for family to stay.






Basement Finish
We added over 1,150 finished sqft. to this home. We took this unfinished basement that was only being used for storage and created a space that will be used and enjoyed for years. This project added 2 bedrooms, 1 bath and a large family area. The homeowners look forward to using this space for family game/movie nights and love having the extra bedrooms for family to stay.










Custom Built-Ins
At our company, we believe that every project, regardless of its size, deserves the same level of attention and care. While large remodels often capture the spotlight, we also take immense pride in our smaller endeavors, such as custom built-ins. These unique creations, often crafted to fit specific spaces and needs, are just as important to us as larger undertakings. We approach each project with the same dedication, ensuring that every detail is perfect and that our clients are completely satisfied with the results. Whether it's a cozy nook or a functional storage solution, we treat these little projects with the love and craftsmanship they deserve, making them a beautiful addition to any home.


Exterior Upgrades
The transformation of the front stoop is remarkable, showcasing the meticulous repair work that has been done to ensure its longevity. The addition of new deck material not only enhances the aesthetic appeal of the entrance but also significantly improves safety for residents and visitors alike.
This thoughtful upgrade has effectively elevated the curb appeal of the home, making it more inviting and visually appealing. The combination of durability and style in this renovation exemplifies our commitment to quality and safety, ensuring that the stoop remains both functional and attractive for years to come.




